Full Description
Welcome to this impressive larger-than-average townhouse located on Black Cat Drive in Northampton. This recently refurbished property boasts four/Five spacious bedrooms, making it an ideal family home or a perfect investment opportunity. The house features a well-appointed reception room that provides a warm and inviting space for relaxation and entertaining.One of the standout features of this property is the Home Office/Gym/additional living space or large garden room situated over the garage, offering a versatile area that can be used for various purposes, whether it be a playroom, home office, or additional living space. The fitted kitchen is designed for practicality and style, ensuring that meal preparation is a delight.The property benefits from gas to radiator heating, ensuring a comfortable environment throughout the year. With two modern bathrooms, there is ample space for family members and guests alike, enhancing the convenience of daily living. The property also has a garage with additional parking . Notably, this townhouse is offered with no upper chain, allowing for a smooth and efficient purchase process. We highly recommend viewing this property to fully appreciate its size, quality, and potential. This home is perfect for those seeking a blend of modern living in a desirable location. Don’t miss the opportunity to make this wonderful townhouse your own.
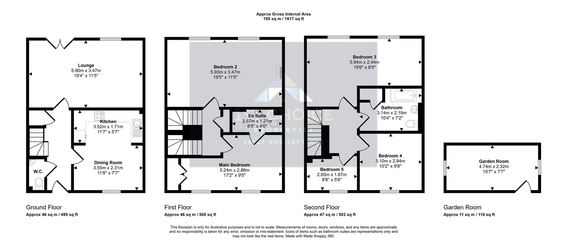
Entrance
Entrance Hall
WC
Lounge (5.09m x 3.47m (16'8" x 11'4"))
Dining Room (3.55m x 2.31m (11'7" x 7'6"))
Kitchen (3.55m x 1.71m (11'7" x 5'7"))
Main Bedroom (5.24m x 2.86m (17'2" x 9'4" ))
Ensuite
Bedroom 2 (5.93m x 3.34m (19'5" x 10'11"))
Bedroom 3 (5.94m x 2.44m (19'5" x 8'0"))
Bedroom 4 (3.10m x 2.94m (10'2" x 9'7"))
Bedroom 5 (2.65m x1.67m (8'8" x5'5"))
Bathroom
Garden
Garage
Garden Room (4.74m x 2.32m (15'6" x 7'7"))
Viewing
Please contact us on 01908 991277 if you wish to arrange a viewing appointment for this property, or require further information.
Energy Performance Certificate
Click here to view the Energy Efficiency Rating and Environmental Impact Rating for this property.
Disclaimer
1st Choice Properties - AL1 endeavour to maintain accurate depictions of properties in Virtual Tours, Floor Plans and descriptions, however, these are intended only as a guide and purchasers must satisfy themselves by personal inspection.
Entrance
Entrance Hall
WC
Lounge (5.09m x 3.47m (16'8" x 11'4"))
Dining Room (3.55m x 2.31m (11'7" x 7'6"))
Kitchen (3.55m x 1.71m (11'7" x 5'7"))
Main Bedroom (5.24m x 2.86m (17'2" x 9'4" ))
Ensuite
Bedroom 2 (5.93m x 3.34m (19'5" x 10'11"))
Bedroom 3 (5.94m x 2.44m (19'5" x 8'0"))
Bedroom 4 (3.10m x 2.94m (10'2" x 9'7"))
Bedroom 5 (2.65m x1.67m (8'8" x5'5"))
Bathroom
Garden
Garage
Garden Room (4.74m x 2.32m (15'6" x 7'7"))
Viewing
Please contact us on 01908 991277 if you wish to arrange a viewing appointment for this property, or require further information.
Energy Performance Certificate
Click here to view the Energy Efficiency Rating and Environmental Impact Rating for this property.
Disclaimer
1st Choice Properties - AL1 endeavour to maintain accurate depictions of properties in Virtual Tours, Floor Plans and descriptions, however, these are intended only as a guide and purchasers must satisfy themselves by personal inspection.

